Thiết kế nội thất nhà ống 2 tầng đẹp tiện nghi thu hút mọi ánh nhìn
Thiết kế nội thất nhà ống 2 tầng hiện đại cho căn nhà phố 1 trệt 1 lầu là một trong những dự án nội thất tiêu biểu tại On Home Asia. Điểm nổi bật dễ nhận thấy ở các công trình nội thất nhà phố tại On Home Asia đó chính là sắc thái sang trọng đi kèm theo đó nội thất hiện đại, tích hợp nhiều tính năng đáp ứng nhu cầu của từng thành viên trong gia đình.
Hãy cùng On Home Asia khám phá những thiết kế nội thất nhà ống 2 tầng đẹp được khách hàng ưa chuộng tại On Home Asia nhé!
NỘI DUNG BÀI VIẾT
1. Mẫu thiết kế nội thất nhà ống 2 tầng hiện đại.
4. Khách hàng nói gì về On Home Asia?
On Home Asia mời anh chị xem qua những mẫu thiết kế đẹp nhất dành cho nhà phố ngay trong video dưới đây nhé!
1. Mẫu thiết kế nội thất nhà ống 2 tầng hiện đại.
1. 1 Tổng quan mặt bằng nhà ống 2 tầng hiện đại.
Mặt bằng bố trí nhà ống 2 tầng của anh Lê Tấn Bân
1.2. Nội thất phòng khách mẫu nhà ống 2 tầng hiện đại.
Không gian phòng khách mang nét đẹp tinh tế, sang trọng với màu nâu gỗ trầm tĩnh. Bộ sofa da bóng cùng chiếc đèn trần độc đáo giúp cho phòng khách bớt một phần đơn điệu thêm một phần cá tính riêng biệt.
Nội thất phòng khách1.3. Thiết kế khu vực bàn ăn trong nhà 2 tầng hiện đại
Bộ bàn ăn 6 ghế với thiết kế thanh lịch tạo ra chỗ ngồi thoải mái cho các thánh viên trong gia đình. Thiết kế bàn ăn hình tròn giúp những bữa quây quần thêm phần ấm áp và gắn kết tình cảm của các thành viên trong gia đình.
Khu vực bàn ăn tối giản sang trọng
1.4. Không gian bếp trong thiết kế nhà 2 tầng
Phòng bếp với hệ thống tủ gỗ - bếp đảo sang trọng,đầy đủ các ngăn chức năng giúp quá trình nấu nướng diễn ra thoải mái, thuận lợi hơn.
Khu vực bếp nấu sang trọng và tiện nghi với đầy đủ công năng
1.5. Nhà 2 tầng đẹp với không gian sinh hoạt và làm việc thông thoáng
On Home Asia đã thiết kế hai không gian tách biệt những được thiết lồng ghép vào nhau một cách tự nhiên mà không bị bí bách. Bàn thờ được thiết kế với hệ tủ gỗ cổ kính riêng biệt. Bộ sofa sạch sẽ cho gia đình không gian thư giãn thoải mái nhất.
Phòng làm việc được thiết kế hội tụ đủ 4 yêu tố: yên tĩnh, sáng sủa, thoáng đãng và đầy đủ nội thất tiện nghi. Góp phần giúp cho quá trình làm việc tại nhà nâng cao hiệu suất. Quá trình lưu giữ tài liệu, sách báo cũng ngăn nắp và thuận tiện hơn.
Khu vực phòng thờ nhà ống 2 tầng đẹp
Khu vực sinh hoạt chung
Khu vực phòng làm việc của thiết kế nội thất nhà ống 2 tầng
1.6. Bố trí phòng ngủ trong thiết kế nhà đẹp 2 tầng
Không gian phòng ngủ với màu sắc trung tính phù hợp với anh/chị yêu thích sự đơn giản và thoáng đãng. Lượt bớt những chi tiết trang trí rườm rà thay vào đó là cách phối màu hài hòa giúp không gian nổi bật hơn.
Kết hợp thêm một bộ bàn trà giúp quý ông có thể thưởng thức những ly trà thơm ngon tại phòng ngủ mà không phải di chuyển xuống phòng khách.
Phòng ngủ master thu hút với ánh vàng trong thiết kế nội thất
Phòng ngủ master của thiết kế nội thất nhà ống 2 tầng hiện đại
Bàn trà trong phòng ngủ master
Nội thất phòng ngủ hiện đại
Nội thất phòng ngủ dành cho ông bà
Phòng ngủ dành cho trẻ em
1.7. Mẫu nhà ống 2 tầng đẹp với phòng vệ sinh tràn ngập ánh sáng.
Thiết kế nội thất phòng vệ sinh của mẫu thiết kế nội thất nhà ống 2 tầng này được thiết kế một cửa sổ kính lớn đưa ánh sáng và gió từ thiên nhiên vào phòng giúp không gian trở nên thông thoáng hơn.
Kết hợp thêm một hệ tủ nhỏ xinh giúp anh/chị có thể dễ dáng lưu trữ đồ dùng cá nhân mà không lo chúng bị thất lạc hay ẩm ướt.
Nhà vệ sinh tràn ngập ánh sáng
Toilet được thiết kế đơn giản, gọn gàng
2. Thiết kế nội thất nhà ống 2 tầng đẹp và tiện nghi.
Thế nào là định nghĩa về một mẫu thiết kế nội thất nhà ống 2 tầng đẹp và tiện nghi? Mẫu thiết kế nội thất nhà ống 2 tầng dưới đây sẽ đem đến cho anh/chị những lời giải thú vị về câu hỏi trên.
2.1. Bản vẽ thiết kế nội thất nhà ống 2 tầng đẹp và tiện nghi.
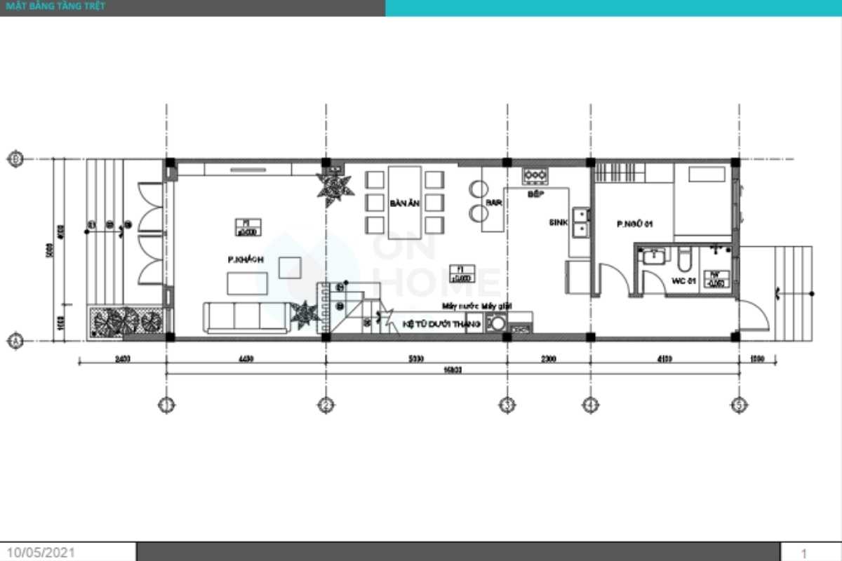
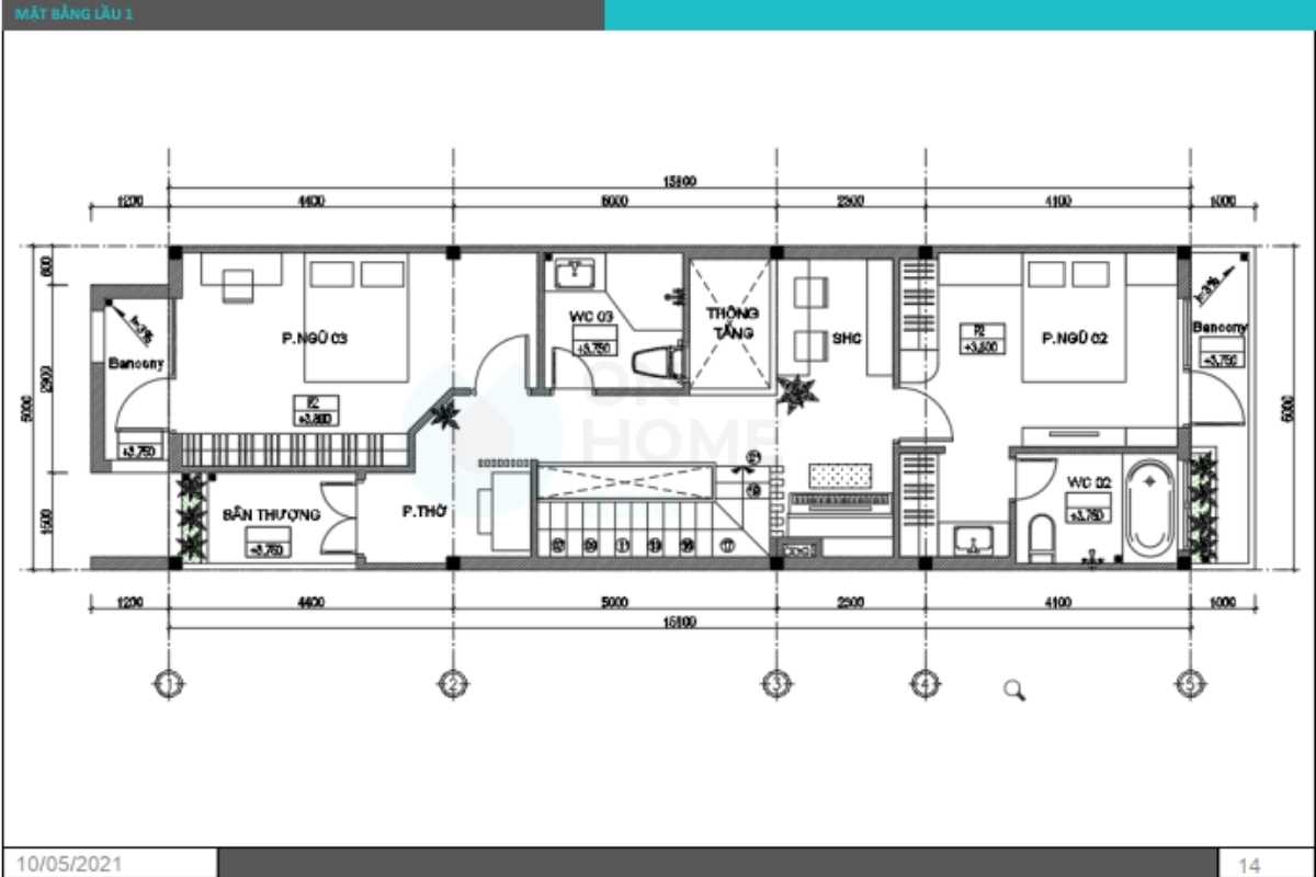
Bản vẽ thiết kế nội thất nhà ống với không gian tầng 1 được thiết kế thành khu vực sinh hoạt chung của cả gia đình gồm phòng khách và bếp liên thông với nhau. Tầng 2 được thiết kế thành không gian riêng của từng thành viên trong gia đình.
Mặt bằng bố trí tầng 1 nhà phố
Mặt bằng tầng 2 của nhà ống 2 tầng đẹp
2.2. Thiết kế nội thất phòng khách của nhà ống 2 tầng đẹp.
Tinh tế, trang nhã là những gì anh/chị có thể cảm nhận được khi nhìn vào mẫu nội thất phòng khách này. Một bộ sofa gỗ gầm thấp kết hợp với bàn trà nhỏ xinh được tô điểm bởi tấm thảm trải sàn màu trắng. Đi kèm với đó là hệ tủ An Cường được thiết kế đầy thanh lịch mang lại một không gian hiện đại và tiện nghi.
Nội thất phòng khách nhà ống 2 tầng đơn giản
2.3. Thiết kế nội thất phòng bếp đẹp
Thiết kế phòng bếp đơn giản với mặt tường sau bếp được thiết kế với những vân đá xanh mềm mại vừa nâng cao tính thẩm mỹ vừa là nguồn cảm hứng vô tận cho các chị em vào bếp. Thêm một bộ bàn ăn 6 ghế bằng gỗ sáng màu cung cấp đủ chỗ ngồi cho các thành viên trong gia đình.
Nội thất phòng bếp đơn giản
Bàn ăn 6 ghế bằng gỗ sáng màu
2.4. Thiết kế nội thất phòng ngủ nhà ống 2 tầng đẹp.
Nội thất phòng ngủ với các đường nét và chi tiết đơn giản mang đến cho anh/chị cảm giác thoải mái và dễ chịu nhất. Thiết kế thêm một cửa kính lớn đem ánh sáng và gió vào phòng giúp không gian trở nên thông thoáng hơn, cải thiện tinh thần và chất lượng giấc ngủ của anh/chị.
Phòng ngủ trẻ em với các hình vẽ động vật ngộ nghĩnh giúp kích thích sự phát triển trí não của con trẻ.
Nội thất phòng ngủ master
Nội thất phòng ngủ trẻ em
3. Thiết kế nội thất nhà ống 2 tầng 3 phòng ngủ.
3.1. Bản vẽ thiết kế nội thất nhà ống 2 tầng 3 phòng ngủ.
Yêu cầu chính của chủ nhân bản vẽ thiết kế nội thất nhà phố này đó chính là một không gian đơn giản, khoa học nhưng vẫn đảm bảo tính tiện nghi. Sau nhiều lần bàn bạc với chủ nhà thì On Home Asia đã đưa ra một phương án thích hợp.
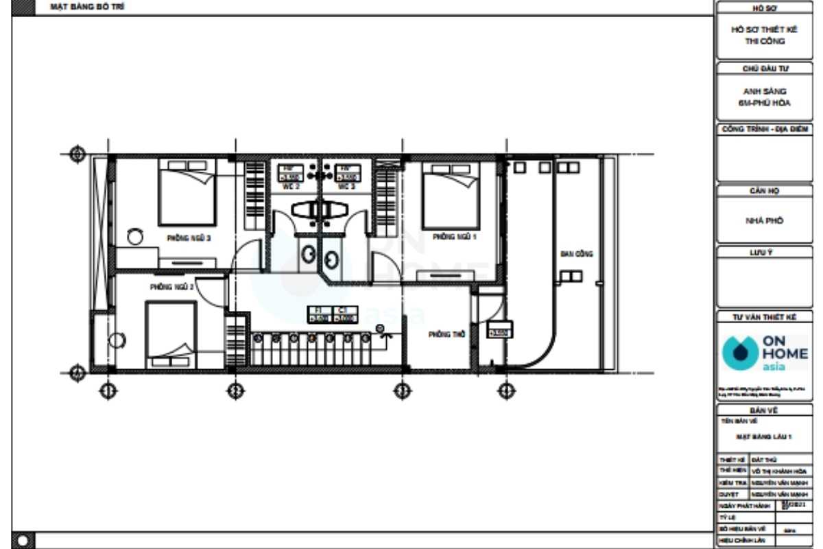
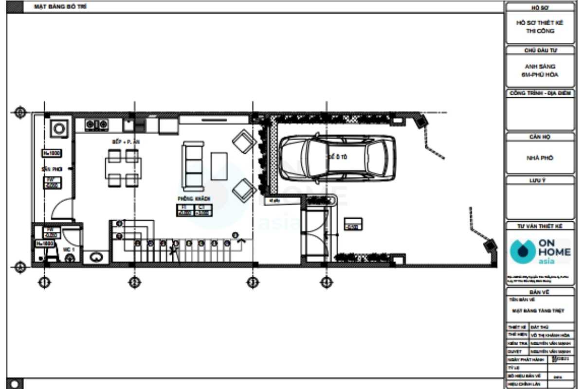
Trong đó khu vực tầng 1 được thiết kế thành phòng khách, phòng bếp và một phòng ngủ. Tầng 2 được thiết kế với 2 phòng ngủ và phòng thờ.
Mặt bằng tầng trệt nhà phố 2 tầng
Mặt bằng thiết kế nội thất nhà phố tầng 2
3.2. Thiết kế nội thất phòng khách và bếp.
Thiết kế nội thất tầng trệt nhà phố với các đường nét đơn giản kết hợp với màu sắc nhẹ nhàng và trang nhã mang đến cho anh/chị một không gian hiện đại, tinh tế và trang nhã. Sắc trắng kết hợp với những ánh nắng vàng giúp không gian trở nên mềm mại và cuốn hút hơn.
Nội thất phòng khách với bộ sofa nỉ êm ái kết hợp với bộ tranh treo tường chủ đề thiên nhiên mang đến cảm giác thoải mái cho anh/chị. Không quá cầu kỳ nhưng đủ sức hút để gây ấn tượng với anh/chị ngay từ những ánh nhìn đầu tiên.
Thiết kế nội thất phòng khách nhà phố đơn giản
Phòng bếp được thiết kế liền với phòng khách và được ngăn chia bởi một vách ngăn gỗ tối màu. Tận dụng chân cầu thang thiết kế các kệ tủ nhỏ xinh để anh/chị có thể cất giữ các vật dụng.
Một căn bếp nhỏ xinh với đầy đủ các thiết bị như lò nướng, tủ lạnh, bếp từ, bồn rửa,... giúp chị em phụ nữ có thể bao quát việc nấu ăn. Một bộ bàn ăn nhỏ kết hợp với ánh đèn lung linh khiến không bữa ăn thêm phần ấm cúng hơn.
Trang trí gầm cầu thang nhà ống
Nội thất phòng bếp nhà ống 2 tầng
Thiết kế tủ bếp hiện đại
Nội thất bàn ăn nhỏ xinh
3.3. Thiết kế nội thất phòng ngủ nhà ống.
Thiết kế nội thất phòng ngủ với màu sắc hài hòa và các chi tiết thanh lịch kết hợp với các đồ nội thất cơ bản mang đến cho anh/chị một cảm giác thoải mái và dễ chịu nhất. Thiết kế một cửa sổ nhỏ đặt cạnh giường ngủ giúp giải phóng không gian hiệu quả hơn.
Thiết kế nội thất phòng ngủ
4. Khách hàng nói gì về On Home Asia?
Trong quá trình đồng hành với khách hàng, On Home Asia vinh dự được lắng nghe những chia sẻ từ các anh chị sau khi nhận một ngôi nhà "mới". Những lời đóng góp của quý anh chị là động lực để đội ngũ On Home Asia phấn đấu làm việc tốt hơn, mang đến những trải nghiệm sống thoải mái và tiện nghi cho gia đình.
-
Anh chị cùng nghe chia sẻ của chị Hồi Nguyên với dự án nhà phố Sun Casa nhé!
-
Dưới đây là cảm nhận của chị Ngọc Tuyền với căn hộ Compass One Bình Dương
-
Lý do chị Chang Wan Ting rất thích mẫu thiết kế nội thất căn hộ Compass One này là gì?
Lời kết
Thiết kế nội thất nhà phố đẹp với phong cách hiện đại sẽ giúp cho căn nhà của anh chị trở nên sang trong. On Home Asia mong rằng bài viết này có thể giúp anh chị thêm nhiều ý tưởng khi trang trí nội thất cho tổ ấm của mình.
Nếu như Anh/Chị đang muốn thiết kế nội thất cho căn nhà như mơ ước của mình, anh/chị vui hãy liên hệ đến On Home Asia để nhận được sự tư vấn sớm nhất nhé!













BÌNH LUẬN