50+ Mẫu Bản Vẽ Thiết Kế Nội Thất Nhà Phố [2025]
Bản vẽ thiết kế nội thất nhà phố là một bộ hồ sơ thể hiện vị trí, kích thước, màu sắc, ánh sáng, cách trang trí,... của các đồ vật bên trong một ngôi nhà.
Một bản vẽ thiết kế nhà hoàn chỉnh sẽ giúp ngôi nhà của anh/chị trở nên hài hòa, tiện nghi và khoa học hơn. Bài viết dưới đây của On Home Asia sẽ giới thiệu đến anh/chị những bản vẽ nhà phố hoàn chỉnh mà đội ngũ của OHA đã thực hiện.
Nội dung bài viết
2. Bản vẽ thiết kế nội thất nhà phố liền kề.
3. Bản vẽ thiết kế nội thất nhà phố 1 trệt 1 lầu đẹp.
4. Bản vẽ thiết kế nội thất nhà phố nhỏ đẹp.
1. Hồ sơ thiết kế nội thất nhà phố.
Trước khi tìm hiểu đến bản vẽ thiết kế nội thất nhà phố anh/chị hãy cùng On Home Asia tìm hiểu về hồ sơ thiết kế nội thất nhà phố nhé!
1.1. Hồ sơ thiết kế nội thất nhà phố quan trọng như thế nào trong thiết kế nội thất?
.jpg?quality=low&width=1000&height=666&name=ho-so-thiet-ke-nha-pho%20(2).jpg) Hồ sơ thiết kế nội thất nhà phố
Hồ sơ thiết kế nội thất nhà phố
Hồ sơ thiết kế nội thất nhà phố là một phần quan trọng quyết định tính thẩm mỹ, khoa học và tiện nghi của một công trình thiết kế nội thất nhà phố.
Một bộ hồ sơ thiết kế thi công nội thất nhà phố hoàn chỉnh sẽ phản ánh đầy đủ thông tin về bố cục, kích thước, vị trí sắp xếp các món đồ nội thất trong không gian.
Nhìn vào bộ hồ sơ thiết kế nội thất anh/chị sẽ có thể quyết định có nên tiếp tục chọn đơn vị này đồng hành trong chặng đường tiếp theo không?
Đối với một đơn vị nội thất, bộ hồ sơ thiết kế nội thất nhà phố chính là sự thể hiện năng lực và sự chuyên nghiệp của công ty đó. Một đơn vị nội thất có trình độ nghiệp vụ, chuyên nghiệp thì họ sẽ biết cách cách trình bày bộ hồ sơ nội thiết kế nội thất nhà phố khoa học, đúng quy chuẩn, có đóng mộc rõ ràng.
Qua cách trình bày hồ sơ thiết kế nội thất nhà phố, anh/chị sẽ có thể đánh giá mức độ chuyên nghiệp và uy tín của đơn vị nội thất đó.
- 
Hồ sơ thiết kế nội thất nhà phố sẽ giúp chủ nhà tiết kiệm được thời gian, nhân lực và chi phí trong việc nghiên cứu để bố trí nội thất. Đặc biệt là những không gian nhỏ như những mẫu thiết kế nội thất nhà phố 30m2 hay 50m2. 
- 
Mang đến một không gian sống lý tưởng thể hiện tính cá nhân hóa cao phù hợp với sở thích và nhu cầu của chủ nhà. 
- 
Nâng cao hiệu quả kinh tế khi thi công nội thất nhà phố, hạn chế tối đa các sai lệch, không mất thời gian sửa chữa. Không lãng phí vật tư thi công nội thất nhà phố. 
- 
Tạo nên sự hài hòa và thẩm mỹ của không gian và đảm bảo tính phong thủy nhà ở. 
- 
Giúp nâng cao chất lượng cuộc sống của gia đình anh/chị, mang đến những trải nghiệm với sự trọn vẹn trong từng phút giây sống. 
Như vậy có thể nói rằng một bộ hồ sơ thiết kế nội thất có vai trò rất quan trọng đối với một công trình thiết kế nội thất nhà phố. Vậy một bộ hồ sơ nội thất nhà phố hoàn chỉnh sẽ bao gồm những gì, hãy cùng On Home Asia tìm hiểu ngay dưới đây nhé!
1.2. Một bộ hồ sơ thiết kế nội thất nhà phố hoàn chỉnh sẽ bao gồm những gì?
.jpg?quality=low&width=1000&height=666&name=ho-so-thiet-ke-nha-pho%20(1).jpg) Danh mục hồ sơ thiết kế nội thất nhà phố
Danh mục hồ sơ thiết kế nội thất nhà phố
Hồ sơ thiết kế nội thất nhà phố chất lượng sẽ thể hiện đầy đủ và chi tiết nhất bao gồm các bản vẽ thể hiện vị trí, kích thước, màu sắc, ánh sáng, cách trang trí, điện nước…Liên quan đến không gian nội thất nhà phố được thiết kế.
Một bộ hồ sơ thiết kế nội thất nhà phố bao gồm nhiều bản vẽ được trình bày trên các tờ A3 đóng thành quyển có bìa in hình 3d phối cảnh không gian nội thất. Bộ sơ sơ có thể gồm hơn trăm tờ A3 chi tiết, dày dặn và kỹ càng.
Các trang bìa in rõ tên chủ đầu tư, tên công trình, địa điểm công trình, logo đơn vị thiết kế, đóng dấu xác nhận của người chủ trì thiết kế công trình. Bên cạnh đó, các bản vẽ 3d phối cảnh là những ảnh in màu bìa cứng thể hiện rõ nét cả màu sắc…
On Home Asia xin chia sẻ đến anh/chị những nội dung đầy đủ của một bộ hồ sơ thiết kế nội thất nhà phố hoàn chỉnh:
- 
Bảng danh mục các bản vẽ chi tiết. 
Trong bảng danh mục các bản vẽ thiết kế nội thất nhà phố chi tiết bao gồm số thứ tự, tên bản vẽ, kí hiệu. Với bảng danh mục này anh/chị sẽ dễ dàng nắm được bố cục của một bộ hồ sơ nội thất.
- 
Bản vẽ 3D thiết kế nội thất nhà phố. 
Bản vẽ 3D nội thất nhà phố thể hiện:
- Phối cảnh 3D không gian của các phòng.
- Thể hiện cụ thể chủng loại vật liệu, màu sắc, ánh sáng,...
- Là hình ảnh trực quan nhất với nhiều góc khác nhau cho từng căn phòng để chủ đầu tư xét duyệt phương án. Các ảnh 3d này được xuất ra từ các phần mềm đồ họa chuyên nghiệp thể hiện một cách trực quan nhất về bố cục và các chi tiết trong căn phòng.
- 
Bản vẽ 2D nội thất nhà phố. 
Nhờ bản thiết kế 2D, anh/chị sẽ hình dung được kết cấu công trình và mặt bằng thi công. Cũng như nắm được kích thước, diện tích và bố cục nhà nội thất.
Bản vẽ 2D nội thất nhà phố bao gồm:
- Mặt bằng bố trí đồ nội thất chi tiết các tầng bao gồm:
+ Mặt đứng chi tiết các diện tường
+ Mặt cắt , mặt bằng, chi tiết cầu thang ( nếu có)
+ Mặt bằng, mặt cắt , chi tiết các khu vực vệ sinh
+ Mặt bằng, mặt cắt các hộp kỹ thuật ( nếu có)
+ Mặt bằng chi tiết lát gạch từng phòng, ban công, sân thượng.
+ Chi tiết kiến trúc các cửa ( Cửa ra vào, cửa sổ, vệ sinh)
- Hồ sơ kỹ thuật phần thiết bị, vật dụng nội thất, bao gồm:
+ Mặt bằng định vị đồ nội thất
+ Bản vẽ kỹ thuật chi tiết đồ nội thất
+ Bản vẽ thống kê đồ nội thất
- Chi tiết sàn bao gồm:
+ Khai triển chi tiết ốp sàn từng phòng.
+ Vật liệu sử dụng cho ốp lát : Gạch , đá , gỗ ( công nghiệp hay tự nhiên), thảm sàn.
+ Thể hiện chủng loại vật liệu, kích thước, nhà cung cấp.
+ Đính kèm hình ảnh mẫu vật liệu thực tế sẽ sử dụng cho từng khu sàn trong từng khu vực.
- Chi tiết trần bao gồm:
+ Khai triển chi tiết vách trang trí theo bản vẽ 3D
+ Mặt cắt chi tiết trần
+ Thể hiện chi tiết vật liệu để ốp trần trang trí
+ Mặt cắt chi tiết viền trần nếu có
+ Chi tiết bố trí đèn thắp sáng, đèn downlight, đèn hắt trần
+ Màu sắc đèn sử dụng.
- Chi tiết vách:
+ Khai triển các chi tiết vách trang trí theo bản vẽ thiết kế 3D
+ Chỉ định các loại vật liệu dùng để trang trí: ốp gỗ, dán giấy, bọc da, ốp gạch.
+ Chi tiết loại vật liệu sử dụng để trang trí : màu sắc, chủng loại, kích thước, xuất xứ, nhà cung cấp.
+ Đính kèm mẫu vật liệu thực tế sẽ sử dụng cho từng vách.
- Phần điện:
+ Sơ đồ hệ thống điện
+ Mặt bằng bố trí điện các tầng.
+ Mặt bằng bố trí điện trang trí các vách và cầu thang
+ Hệ thống báo cháy, camera ( nếu có yêu cầu)
+ Vị trí đèn chiếu sáng, đèn trang trí.
+ Vị trí lắp công tắc phù hợp công năng sử dụng, đảm bảo tính thẩm mỹ.
+ Thể hiện chủng loại đèn sẽ sử dụng cho từng khu vực.
- Phần nước:
+ Sơ đồ hệ thống nước
+ Mặt bằng cấp thoát nước các tầng
+ Chi tiết thoát nước các phòng vệ sinh, sân vườn ( nếu có )
+ Vị trí lắp đặt các thiết bị vệ sinh, vòi sen, bồn cầu, lavabo, bồn tắm.
- Anten, điện thoại, internet:
+ Hệ thống điện thoại các tầng
+ Hệ thống internet các tầng
+ Hệ thống lắp đặt máy lạnh, máy hút.
+ Hệ thống kỹ thuật khác nếu có
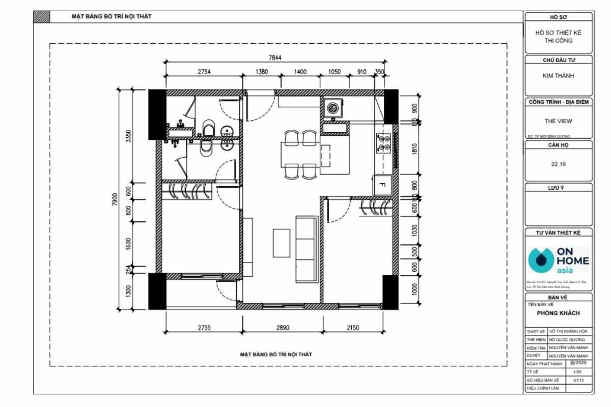
2. Bản vẽ thiết kế nội thất nhà phố 3 tầng.
Anh/chị có thể tải về miễn phí các bản vẽ thiết kế nội thất cho nhà phố ngay dưới đây!
Bản vẽ thiết kế nội thất nhà phố dưới đây của On Home Asia sẽ mang đến cho anh/chị một không gian hiện đại, sang trọng và vượt qua quy chuẩn về một ngôi nhà truyền thống. Ngôi nhà được thiết kế với 3 phòng ngủ và 1 phòng giải trí.
Cách bố trí nội thất nhà phố khoa học và hợp lý mang đến cho tất cả các thành viên một không gian sống hoàn hảo và trọn vẹn từng phút giây.
Tầng trệt được bố trí thành khu vực sinh hoạt chung của cả gia đình gồm phòng khách và bếp giúp. Lầu 1 và 2 được thiết kế thành khu vực sinh hoạt riêng của từng thành viên trong gia đình.
.jpg?quality=low&width=1000&height=666&name=ban-ve-nha-pho-mau-2%20(2).jpg) Bản vẽ thiết kế nội thất nhà phố 3 tầng
Bản vẽ thiết kế nội thất nhà phố 3 tầng 
.jpg?quality=low&width=1000&height=666&name=ban-ve-nha-pho-mau-2%20(3).jpg) Bản vẽ thiết kế nội thất nhà phố tầng 2
Bản vẽ thiết kế nội thất nhà phố tầng 2
.jpg?quality=low&width=1000&height=666&name=ban-ve-nha-pho-mau-2%20(1).jpg) Bản vẽ thiết kế nội thất nhà phố tầng 3
Bản vẽ thiết kế nội thất nhà phố tầng 3
.jpg?quality=low&width=1000&height=666&name=ban-ve-thiet-ke-noi-that-nha-pho-mau-2%20(5).jpg) Phối cảnh thiết kế nội thất nhà phố 3 tầng phòng khách
Phối cảnh thiết kế nội thất nhà phố 3 tầng phòng khách
.jpg?quality=low&width=1000&height=666&name=ban-ve-thiet-ke-noi-that-nha-pho-mau-2%20(8).jpg) Phối cảnh kệ tivi phòng khách
Phối cảnh kệ tivi phòng khách 
.jpg?quality=low&width=1000&height=666&name=ban-ve-thiet-ke-noi-that-nha-pho-mau-2%20(7).jpg) Phối cảnh ghế sofa phòng khách nhà phố
Phối cảnh ghế sofa phòng khách nhà phố
.jpg?quality=low&width=1000&height=666&name=ban-ve-thiet-ke-noi-that-nha-pho-mau-2%20(9).jpg) Phối cảnh bản vẽ thiết kế nội thất nhà phố dành cho phòng bếp
Phối cảnh bản vẽ thiết kế nội thất nhà phố dành cho phòng bếp
.jpg?quality=low&width=1000&height=666&name=ban-ve-thiet-ke-noi-that-nha-pho-mau-2%20(10).jpg) Phối cảnh thiết kế nội thất nhà phố dành cho phòng ngủ master
Phối cảnh thiết kế nội thất nhà phố dành cho phòng ngủ master 
.jpg?quality=low&width=1000&height=666&name=ban-ve-thiet-ke-noi-that-nha-pho-mau-2%20(15).jpg) Bản vẽ thiết kế nhà phố liền kề
Bản vẽ thiết kế nhà phố liền kề
.jpg?quality=low&width=1000&height=666&name=ban-ve-thiet-ke-noi-that-nha-pho-mau-2%20(13).jpg) Phối cảnh nội thất phòng ngủ
Phối cảnh nội thất phòng ngủ 
Nhấn đăng ký thiết kế thi công nội thất trọn gói để nhận những ưu đãi đặc biệt từ On Home Asia.

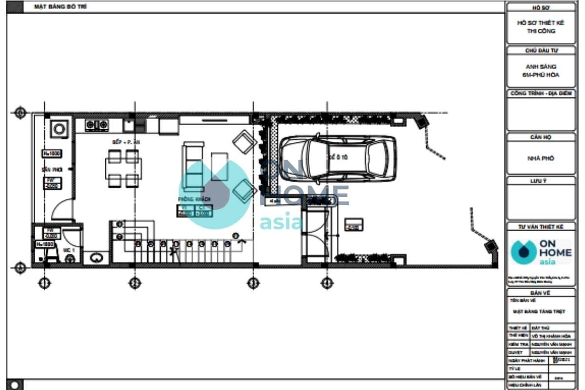
3. Bản vẽ thiết kế nội thất nhà phố liền kề.
Nếu anh/chị đang sở hữu một căn nhà phố liền kề có diện tích hạn chế nhưng chưa biết thiết kế nội thất như thế nào thì hãy tham khảo ngay bản vẽ thiết kế nhà liền kề dưới đây của On Home Asia nhé!
Bản vẽ nhà 1 trệt 2 lầu dưới đây được thiết kế với 3 phòng ngủ, 1 phòng đọc sách và 4 phòng vệ sinh đảm bảo nhu cầu sinh hoạt của anh/chị.
.jpg?quality=low&width=1000&height=666&name=ban-ve-thiet-ke-noi-that-nha-pho-mau-3%20(2).jpg) Bản vẽ thiết kế nội thất nhà phố liền kề tầng trệt
Bản vẽ thiết kế nội thất nhà phố liền kề tầng trệt
Nhìn vào bản vẽ nhà này anh/chị sẽ thấy được một bố cục không gian với sự hợp lý và hài hòa đến từng centimet. Nội thất nhà phố được bố trí theo tiêu chuẩn khoa học và hài hòa, tận dụng triệt để các góc chết mang lại một không gian sinh hoạt sang trọng và tiện nghi.
Các món đồ nội thất đều được sản xuất riêng theo kích thước của các không gian và nhu cầu, sở thích của anh/chị tạo nét cá tính riêng biệt cho ngôi nhà mà không dễ tìm kiếm ở những ngôi nhà khác.
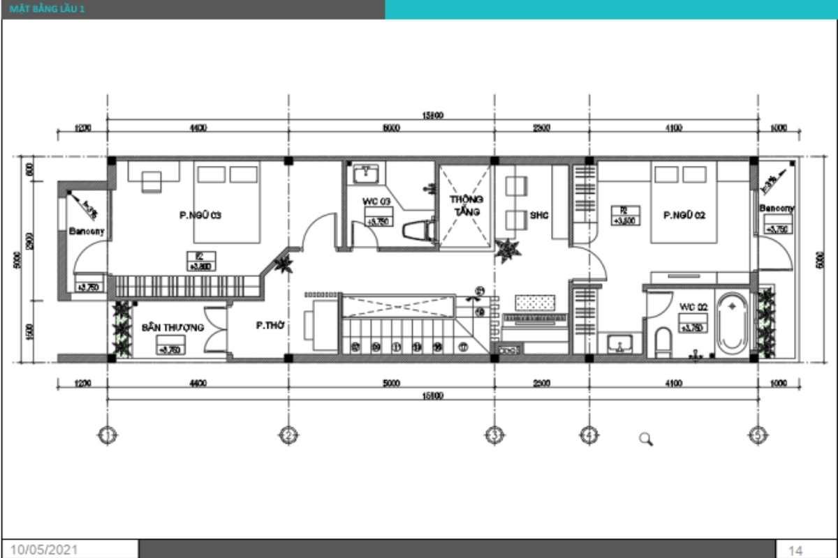
.jpg?quality=low&width=1000&height=666&name=ban-ve-thiet-ke-noi-that-nha-pho-mau-3%20(3).jpg) Bản vẽ thiết kế nội thất nhà phố lầu 1
Bản vẽ thiết kế nội thất nhà phố lầu 1
Hạn chế lớn nhất của các mẫu nội thất nhà phố đó chính là sự hạn chế về không gian xanh. Chính vì thế khi anh/chị nhìn vào bản vẽ thiết kế nội thất nhà phố này anh/chị sẽ thấy sự khéo léo và tinh tế của đội ngũ nhân viên của On Home Asia. Khi tận dụng khoảng sân thượng ở lầu 2 để tận dụng thành một mảnh vườn nhỏ xinh.
Anh/chị có thể tận dụng khu vực này để mở những bữa tiệc nhỏ để tụ họp bạn bè vào những ngày cuối tuần thảnh thơi.
.jpg?quality=low&width=1000&height=666&name=ban-ve-thiet-ke-noi-that-nha-pho-mau-3%20(14).jpg) Bản vẽ thiết kế nội thất nhà phố lầu 2
Bản vẽ thiết kế nội thất nhà phố lầu 2
.jpg?quality=low&width=1000&height=666&name=ban-ve-thiet-ke-noi-that-nha-pho-mau-3%20(6).jpg) Phối cảnh thiết kế nội thất nhà phố liền kề dành cho phòng khách
Phối cảnh thiết kế nội thất nhà phố liền kề dành cho phòng khách
.jpg?quality=low&width=1000&height=666&name=ban-ve-thiet-ke-noi-that-nha-pho-mau-3%20(5).jpg) Nội thất phòng khách nhà phố liền kề
Nội thất phòng khách nhà phố liền kề
.jpg?quality=low&width=1000&height=666&name=ban-ve-thiet-ke-noi-that-nha-pho-mau-3%20(7).jpg) Phối cảnh nội thất kệ tivi phòng khách
Phối cảnh nội thất kệ tivi phòng khách .jpg?quality=low&width=1000&height=666&name=ban-ve-thiet-ke-noi-that-nha-pho-mau-3%20(8).jpg) Bản vẽ phòng bếp nhà phố đẹp
Bản vẽ phòng bếp nhà phố đẹp
.jpg?quality=low&width=1000&height=666&name=ban-ve-thiet-ke-noi-that-nha-pho-mau-3%20(10).jpg) Phối cảnh đảo bếp sang trọng
Phối cảnh đảo bếp sang trọng 
.jpg?quality=low&width=1000&height=666&name=ban-ve-thiet-ke-noi-that-nha-pho-mau-3%20(15).jpg) Bản vẽ thiết kế nội thất phòng ngủ
Bản vẽ thiết kế nội thất phòng ngủ
.jpg?quality=low&width=1000&height=666&name=ban-ve-thiet-ke-noi-that-nha-pho-mau-3%20(12).jpg) Phối cảnh nội thất phòng ngủ 2
Phối cảnh nội thất phòng ngủ 2
Để có một căn nhà hoàn hảo nhất, anh/chị xem ngay bộ tài liệu "Các bước chuẩn bị khi thiết kế thi công nội thất" của On Home Asia.

4. Bản vẽ thiết kế nội thất nhà phố 1 trệt 1 lầu đẹp.
Những mẫu nhà phố hiện nay thường được xây dựng ngoại thất giống nhau khiến anh/chị cảm thấy dễ nhàm chán vì hình ảnh thường lặp đi lặp lại. Vì vậy, việc có một bản vẽ thiết kế nội thất thật độc đáo và ấn tượng là điều cần thiết.
Thiết kế nội thất nhà ống 2 tầng dưới đây sẽ mang đến cho anh/chị những cái nhìn mới lạ về một mẫu nội thất nhà phố thông thường.
.jpg?quality=low&width=1000&height=666&name=ban-ve-thiet-ke-noi-that-nha-pho-mau-4%20(2).jpg) Bản vẽ thiết kế nhà 1 trệt 1 lầu đẹp
Bản vẽ thiết kế nhà 1 trệt 1 lầu đẹp
.jpg?quality=low&width=1000&height=666&name=ban-ve-thiet-ke-noi-that-nha-pho-mau-4%20(4).jpg) Phối cảnh nội thất phòng khách nhà phố 1 trệt 1 lầu
Phối cảnh nội thất phòng khách nhà phố 1 trệt 1 lầu
.jpg?quality=low&width=1000&height=666&name=ban-ve-thiet-ke-noi-that-nha-pho-mau-4%20(6).jpg) Phối cảnh bàn ăn nhà phố 1 trệt 1 lầu
Phối cảnh bàn ăn nhà phố 1 trệt 1 lầu 
.jpg?quality=low&width=1000&height=666&name=ban-ve-thiet-ke-noi-that-nha-pho-mau-4%20(5).jpg) Phối cảnh nội thất phòng bếp nhà ống
Phối cảnh nội thất phòng bếp nhà ống 
Nội thất nhà 1 trệt 1 lầu tiện nghi, hiện đại với việc bố trí nội thất hài hòa và khoa học mang đến cho anh/chị những trải nghiệm về cuộc sống đầy thú vị.
Bản vẽ thiết kế nội thất nhà phố dưới đây được mang đến một không gian mở tạo sợi dây liên kết và xuyên suốt giữa các không gian tạo cảm giác thoải mái và tinh tế cho ngôi nhà của anh/chị.
.jpg?quality=low&width=1000&height=666&name=ban-ve-thiet-ke-noi-that-nha-pho-mau-4%20(3).jpg) Bản vẽ thiết kế nội thất nhà phố 1 trệt 1 lầu
Bản vẽ thiết kế nội thất nhà phố 1 trệt 1 lầu 
.jpg?quality=low&width=1000&height=666&name=ban-ve-thiet-ke-noi-that-nha-pho-mau-4%20(7).jpg) Bản vẽ phòng ngủ master
Bản vẽ phòng ngủ master
.jpg?quality=low&width=1000&height=666&name=ban-ve-thiet-ke-noi-that-nha-pho-mau-4%20(1).jpg) Phối cảnh nội thất phòng ngủ trẻ em
Phối cảnh nội thất phòng ngủ trẻ em 
5. Bản vẽ thiết kế nội thất nhà phố nhỏ đẹp.
Tiện nghi, khoa học và thẩm mỹ là những yêu cầu chính của chủ nhân bản vẽ thiết kế nội thất nhà phố nhỏ này. Vì không gian ngôi nhà khá hạn chế, nên các kiến trúc sư của On Home Asia đã tìm hiểu nhu cầu của chủ nhân bản vẽ thiết kế và đưa ra các giải pháp phù hợp.
Bản vẽ thiết kế nội thất dưới đây là một trong những dự án nổi bật và nhận được nhiều sự quan tâm của khách hàng. Các khu vực chức năng, khu sinh hoạt đều được chau chuốt và đầu tư kỹ lưỡng đem đến một không gian sống hoàn hảo.
.jpg?quality=low&width=1000&height=666&name=ban-ve-thiet-ke-noi-that-nha-pho-mau-5%20(2).jpg) Bản vẽ nhà phố đẹp
Bản vẽ nhà phố đẹp 
.jpg?quality=low&width=1000&height=666&name=ban-ve-thiet-ke-noi-that-nha-pho-mau-5%20(3).jpg) Phối cảnh nội thất phòng khách nhà phố hiện đại
Phối cảnh nội thất phòng khách nhà phố hiện đại
.jpg?quality=low&width=1000&height=666&name=ban-ve-thiet-ke-noi-that-nha-pho-mau-5%20(6).jpg) Phối cảnh một góc tủ bếp nhà phố
Phối cảnh một góc tủ bếp nhà phố
.jpg?quality=low&width=1000&height=666&name=ban-ve-thiet-ke-noi-that-nha-pho-mau-5%20(7).jpg) Bản vẽ thiết kế nhà bếp
Bản vẽ thiết kế nhà bếp
Nhìn vào bản vẽ thiết kế nội thất nhà phố này anh/chị có thể thấy tất cả các chi tiết đều được tính toán tỉ mỉ và hợp lý mang đến một không gian hài hòa và tinh tế. Ngôi nhà được bố trí không gian hợp lý và tối ưu mọi không gian mang đến sự tiện nghi cho anh/chị trong quá trình sinh hoạt.
Từng chi tiết nội thất đều được sắp xếp hợp lý và khoa học tạo sự thuận tiện cho anh/chị trong quá trình sinh hoạt.
.jpg?quality=low&width=1000&height=666&name=ban-ve-thiet-ke-noi-that-nha-pho-mau-5%20(11).jpg) Bản vẽ nhà phố nhỏ đẹp 3 phòng ngủ
Bản vẽ nhà phố nhỏ đẹp 3 phòng ngủ
.jpg?quality=low&width=1000&height=666&name=ban-ve-thiet-ke-noi-that-nha-pho-mau-5%20(12).jpg) Bản vẽ thiết kế phòng ngủ đẹp
Bản vẽ thiết kế phòng ngủ đẹp
.jpg?quality=low&width=1000&height=666&name=ban-ve-thiet-ke-noi-that-nha-pho-mau-5%20(13).jpg) Phối cảnh không gian phòng ngủ master
Phối cảnh không gian phòng ngủ master 
.jpg?quality=low&width=1000&height=666&name=ban-ve-thiet-ke-noi-that-nha-pho-mau-5%20(15).jpg) Phối cảnh nội thất phòng ngủ bé gái dễ thương
Phối cảnh nội thất phòng ngủ bé gái dễ thương
Để có được một mẫu thiết kế nội thất nhà phố đẹp, anh/chị có thể xem thêm bộ tài liệu: "Bí quyết tránh sai sót khi thiết kế thi công nội thất" của On Home Asia.

Dưới đây là video tổng hợp những mẫu thiết kế nội thất nhà phố mới nhất của On Home Asia:
Lời kết:
Các bản vẽ thiết kế nội thất nhà phố trên đây của On Home Asia với đa dạng phong cách mang đến cho anh/chị nhiều ý tưởng mới độc đáo giúp ngôi nhà của anh/chị thêm phần cuốn hút hơn.
Nếu anh/chị có nhu cầu tư vấn, thiết kế nội thất đừng ngần ngại hãy liên hệ đến On Home Asia qua hotline 0937 767 337 hoặc email oha@onhome.asia để nhận được sự tư vấn sớm nhất nhé!
 
                







 
          
        





BÌNH LUẬN